主管:中共眉山市委眉山市人民政府 主办:眉山市人民政府办公室
眉山市12345政务服务热线(市长热线)电话1:028-12345(眉山区域拨打)
眉山市12345政务服务热线(市长热线)电话2: 028-38119999(非眉山区域拨打)
网站标识码:5114000002 蜀ICP备:12025919号-1 川公网安备:51140202000001
,推荐使用1366*768分辨率以上显示器及IE8.0以上版本浏览器进行浏览
| 眉山市自然资源局关于领地·观江府设计方案的批前公示 |
|
2019-08-27 17:33
[字号:大 中 小]
打印
|
|
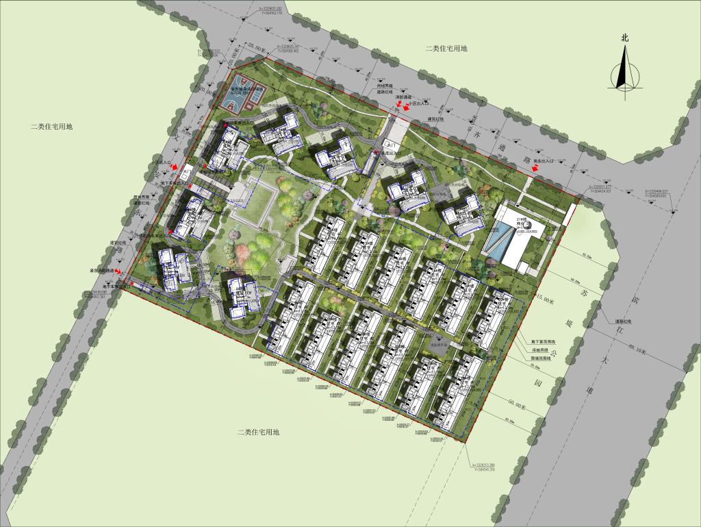
眉山川瑞达房地产开发有限公司拟在齐通路与滨江大道交叉口西南侧建设领地·观江府项目,该项目规划设计方案已经市自然资源局组织的专家评审会和市规划委员会办公室联席会审议通过。 为保证规划的公开、透明,根据有关规定,现对该方案进行批前公示,公示期自2019年8月27日至2019年9月4日,共7个工作日。如有意见和建议,请在公示期内以真实姓名(附联系电话)向我局反映。 意见受理:市自然资源局建筑规划管理科 电 话:028--38195962 附:领地·观江府总平图及鸟瞰图
总平图
鸟瞰图 |
| 【关闭窗口】 |